
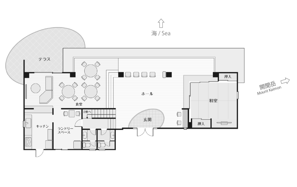
オーシャンビュー開聞岳1階部分の間取図
玄関を開けると想像以上の大広間が広がります。視線の先には大きな海(東シナ海)。
右側には和室10畳、左側にはリビング10帖の大きなスペースに圧倒されます。
リビングの壁には65インチの大型テレビ。その横にはダイニングスペースとキッチンで食事時の動線もバッチリ。
キッチンの隣には、ドラム式洗濯機設置のランドリールーム、男女別トイレ、空気清浄機2台あり。
キッチンには、冷蔵庫、炊飯器、電子レンジ、トースター、電子ケトル、3口ガスコンロ、ホットプレートの充実家電。
その他、食器・鍋類、カトラリー類、Wi-Fiインターネット設備あり。


